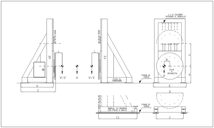
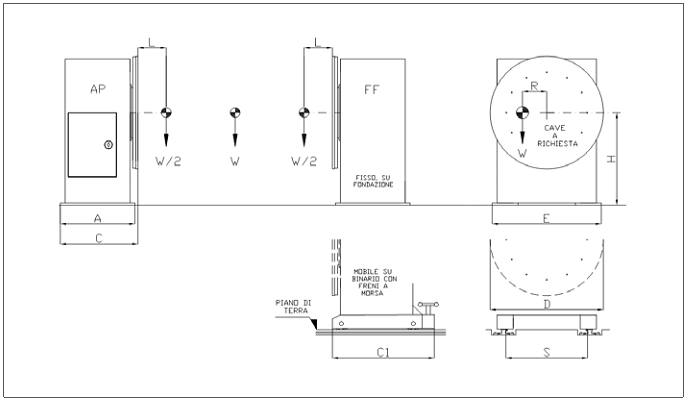
Description
Headstock and tailstock handling lenghtened items.
Carpano Headstock and Tailstock positioners are designed on purpose for long, revolving work-pieces.
Typical applications includes wind towers manufacturing and other kind of cylindrical work-pieces. Loading capacities
range : from 4000 to 40. 000 Kg.
Welding lathes AP/FF and AE/FE STANDARD FEATURES:
• AC drive
• Remote control (24V) by push-button set
• Weld ground from 400A to 1200A according to the model
• Protection bellows (AE and FE only)
• Feeding : 400V 50Hz
OPTIONAL FEATURES
• Different E1 and F1 speeds
• Different feedings
• Interface to automatic welding machine
• «Two-hands» remote control
• Wireless remote control
• Vertical stroke K up to 2200 mm
• Idle FF / FE tailstock mobile on rails with jaw brakes
• Idle FF tailstock with axial stroke driven by hydraulic cylinder
• Work piece clamping tools
W = Weight capacity Ton
W/2 x L = Rotation torque Ton x m
W x R = Tilting torque Ton x m
E1 = Speed range min/max rpm
A, C, C1, D, E, H, K, S =Dimensions mm
P/AP, P/FF, P/AE, P/FE = Weight Ton








Reviews
There are no reviews yet.